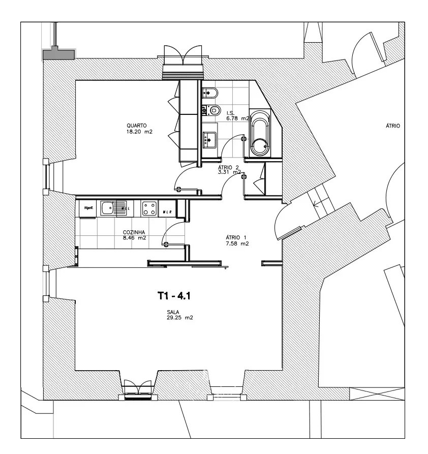
Charmoso apartamento de 1 quarto, com pátio exterior privativo, situado no Convento dos Inglesinhos, junto ao Príncipe Real, em Lisboa. Tem boas áreas, um bom pé direito e ótima exposição solar. Dispõe de 1 lugar de estacionamento e de arrecadação. É arrendado sem mobília. Fica muito bem localizado, numa zona histórica da cidade mas ao mesmo tempo numa rua calma. Há poucos passos de diversos tipos de comércio, serviços, opções de lazer e transportes.


Área útil de 73,49m2 | LU: 415/UT/2008

Ref :
86100542
Área :
83 m²
Quartos :
1
Preço :
2 500 €
Certificação Energética :
C

Localização

BARNES Boutique Lisboa

Praça do Príncipe Real, 32A

1250-184 Lisboa


Pesquisar Propriedades

Saber mais

Propriedades semelhantes